办公屏风|高隔间系统|86款高隔断|高隔间|高隔断
86 Double
产品参数
-
型号:
86 Double
-
尺寸:
-
材质:
产品描述
暂未添加
![]() |
|
86高隔断是最为成熟的产品,已经做过很多工程案例,深得广大客户认同和喜爱,它的任意拆装,灵活多变地空间划分组合,自由吊挂随意的材质搭配,把办公空间的艺术之美演绎的淋淋尽致。 铝框中间横向压条为17mm,竖向压条为13mm,上下槽为65mm,左右壁槽为:65mm,侧柱为20mm。
左图为86mm双面高隔断剖视图 |
如何用高隔断来演绎空间之美 |
|
前言:
把办公室的氛围设计得和睦友好,其用意主要是创造 一种社交景观,通过和睦友好的氛围,将员工们引入一个有共同目标的团体中。高隔断的出现,正是符合了这样的新办公人文理念,摈弃了以往的呆板乏味、缺乏灵动的空间意识。在一定程度上颠覆了人们传统办公空间的意识形态,而更符合现代人所接纳的办公空间理念(为什么这么说呢),它绿色环保节能省材,材料90%的重复使用率,空间灵活多变,工期短,是可以带走的装修。这主要体现在高隔断装潢六大的优势: ①灵活的空间重组,90%的材料重复利用。 ②模块化现场组装、装潢工程期短 ③表面材料的千面万化,增加了更多人性化和设计的可能性 |
|
设计禁忌: 高隔断在设计中有一些问题是要注意的,当和客户洽谈方案的过程中,请谨慎地回答客户提出的问题,切勿盲目地答应客户提的设计要求,毕竟高隔断也有自身的局限性。 一,未顶到天花的高隔断,固定方式有五种 1 双面隔墙每隔3米左右距离加一支连接柱,并且连接柱需伸到楼顶再加以固定;单玻隔墙为每两樘加一支连接柱。 二、走线功能 三,面材的设计注意事项 |
|
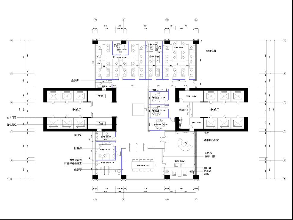
设计方案分析: 广州光亚展览贸易有限公司(甲方),成立于 1995 年,是广州展览行业成立最早的民营展览公司之一, 广东会议展览业协会和广州市会展业行业协会的副会长单位,旗下的 “ 广州国际照明 + 建筑电气技术展览会” 现已发展成为亚洲最大、全球第二的国际性展览会。 |
修改前的平面布置图![]() |
|
|
| 走道是双面108款钢化玻璃设计,最大化的把自然光引进室内。单玻密拼实木门的运用,黑色的铝合金框架,大面积钢化雾玻和清玻搭配,都透露着设计者的良苦用心! |
|
|
| 密拼实木门的设计是本案的一大亮点,它在以后的方案设计中起到一定的主导作用,会议室主讲台隔墙,中间是浅蓝烤漆玻用以书写,笔托设计的是镶嵌式的,是为了防止人员碰撞。两边是黑色KM板加以装饰,使得整面隔墙朴素,内敛,大气! |
案例欣赏![]() |
案例欣赏![]() |
案例欣赏![]() |
86款双面高隔断工程案例![]() |
| 材料说明:炭黑色铝框、6mm钢化清玻、百叶帘、木纹饰面板 设计说明:对于金融企业来说,保密与私密性是有很高的要求。木饰面板和清玻百叶帘的搭配满足了企业的特殊性,同时也彰显出企业独具的文化内涵和雄厚的企业资本! |

86款双面高隔断工程案例![]() |
| 材料说明:银白色铝框(常规色)、6mm钢化清玻、6mm钢化磨砂玻璃、9mmKM板设计说明:这个是比较典型的86款工程案例,上下清玻,中间磨砂,使得空间保证了一定的私密性的同时,又起到了良好的采光效果。 而富有韵律的铝条分割,演绎出了空间灵动之美。从实用性角度来说,门框边(门把手边)做100~200mm宽的设备带,方便装电源开关、门禁器、插座等! |
86款双面高隔断工程案例![]() |
| 材料说明:银白色铝框(常规色)、6mm钢化清玻设计说明:通透的清玻分割,起到了良好的采光效果,符合节能环保理念。走廊与室内的天花有个200mm的落差,在近天花处采用了300mm高同质感的烤漆玻璃加以弥补这种落差,视觉上起到了平衡统一的效果。整个空间彰显大气通透! |
86款双面高隔断工程案例![]() |
| 材料说明:银白色铝框(常规色)、6mm钢化清玻设计说明:大跨度的玻璃分割,弥补了空间本来的压抑、拘谨、楼层低的缺憾。 |

86款双面高隔断工程案例![]() |
| 材料说明:炭黑色铝框、6mm钢化灰玻、9mm木饰面板设计说明:大跨度的高隔墙设计,配以深色线条,暖色搭配,使得紧张的工作环境平添了一笔温馨色彩。中间钢化灰玻的运用,让室内空间能有效的和外界沟通,突出了实用功能,真正让人体验到工作的乐趣! |
86款双面高隔断工程案例![]() |
| 材料说明:银白色铝框(常规色)、6mm钢化清玻、百叶帘、9mmKM板设计说明:客户要求一种具有灵活的私密性,同时又要求稳固、安全的办公环境。在预算不多的情况下,上下KM板中间百叶帘的做法兼顾了客户需求,整体效果统一和谐,不失大家风范。此种做法对设计要求不是很高,预算少的客户是值得借鉴的! |
86款与69款的完美结合![]() |



























